Construction Drawings

Home
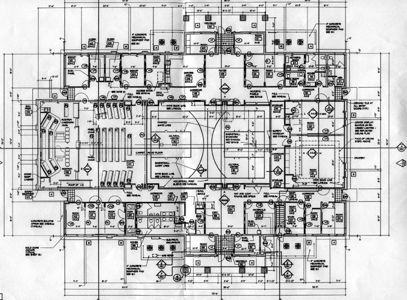
President Goodson was kind enough to let me copy a couple of the construction drawings.

Floor Plan There is quite a bit of detail on this drawing. It is nice to see the layout of the building. High Resolution (2.7M)
Front Elevation This is the front of the building. This side will face Liberty Road.

The part on the front that looks like windows is actually stone.

High Resolution (331K)
Side Elevation This is the south wall of the building. High Resolution (347K)
Home
Comments... Questions... Suggestions... Send me a note Fletcher Chambers.